Продажа 2х-комнатных квартир улица Школьная
  в 

Портал жилой недвижимости «Акула» поможет вам купить 2-комнатную квартиру улица Школьная в Республике Мордовия. На нашем сайте представлены объявления от собственников и риелторов с проверенными данными и контактами. Вы сможете выбрать лучший вариант по цене и планировке. Мы нашли для вас 2 актуальных предложений на сегодня.

2 предложения

Сортировать:
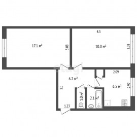
47 м² , 2-комнатную квартиру 7 апреля 2026
1 200 000 ₽

25 424 ₽ за м²

47 м² этаж 5

Продается уютная двухкомнатная квартира на пятом этаже в п. Совхоз Коммунар. В квартире две изолированные комнаты. Площадь — 47, 2. Ремонт косметический, можно сделать под себя. Санузел раздельный. Есть балкон. При необходимости в квартире может остаться вся мебель. Окна в...

56 м² , 2-комнатную квартиру 7 мая 2026
5 300 000 ₽

95 153 ₽ за м²

56 м² этаж 3

Срочно предлагается к продаже светлая и уютная двухкомнатная квартира общей площадью 55.7 кв. м., расположенная в тихом и спокойном рабочем поселке Луховка, по адресу: ул. Школьная, д. 58. Квартира расположена на третьем этаже малоэтажного трехэтажного дома. Сердце квартиры...