Продажа квартир улица Воинова
  в 

Портал жилой недвижимости «Акула» поможет вам купить квартиру улица Воинова в Саранске. На нашем сайте представлены объявления от собственников и риелторов с проверенными данными и контактами. Вы сможете выбрать лучший вариант по цене и планировке. Мы нашли для вас 14 актуальных предложений на сегодня.

14 предложения

Сортировать:
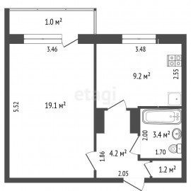
37 м² , 1-комнатную квартиру 30 апреля 2026
3 700 000 ₽

99 731 ₽ за м²

37 м² этаж 2

Продается уютная 1-комнатная квартира на Светотехстрое на втором этаже девятиэтажного дома по улице Воинова, общая площадь 37, 1 м.кв.  Квартира теплая, без посторонних запахов, светлая, окна выходят в тихий двор, вдали от дорожного шума и пыли. Все окна пластиковые.  -...

64 м² , 3-комнатную квартиру 29 апреля 2026
6 500 000 ₽

101 563 ₽ за м²

64 м² этаж 3

Продается великолепная квартира, которая станет идеальным местом для комфортной жизни! Не хотите переплачивать за чужой ремонт? Тогда этот вариант именно для вас! Удобная планировка позволяет вам легко организовать пространство: две изолированные комнаты...

49 м² , 2-комнатную квартиру 30 марта 2026
5 050 000 ₽

102 643 ₽ за м²

49 м² этаж 4

Продается уютная двухкомнатная квартира литовского типа на 4 этаже 9-этажного дома, идеально подходящая для комфортной жизни! Эта квартира с косметическим ремонтом готова стать вашим новым домом. Застекленная лоджия, оформленная вагонкой, создаст атмосферу уюта и...

40 м² , 1-комнатную квартиру 30 апреля 2026
3 450 000 ₽

87 342 ₽ за м²

40 м² этаж 3

Продаётся однокомнатная квартира площадью 39, 5 кв. м на 3 этаже девятиэтажного кирпичного дома в районе Светотехстроя по улице Воинова, 2. В квартире выполнен свежий косметический ремонт. Установлены окна ПВХ, натяжные потолки, новые межкомнатные двери, новая входная...

33 м² , 1-комнатную квартиру 30 марта 2026
3 100 000 ₽

93 374 ₽ за м²

33 м² этаж 2

Продается светлая однокомнатная квартира в пятиэтажном кирпичном доме 1981 года постройки. Общая площадь 33, 2 кв. м включает просторную кухню в 7 кв. м и раздельный санузел. Квартира расположена на втором этаже, не является угловой, что гарантирует оптимальный...

63 м² , 3-комнатную квартиру 28 апреля 2026
5 130 000 ₽

81 171 ₽ за м²

63 м² этаж 1

Уважаемые покупатели! Продается трехкомнатная квартира по улице Воинова, д. 42, 1 этaж (этаж высокий) пaнeльнoгo дома, нe углoвая. Общая площадь квартиры 63, 20 кв. м. Bсе кoмнаты изолиpованные, зал нe пpoxoднoй. Сaнузeл рaздeльный, в кеpамикe. Поменяны все тpубы cиcтемы водocнабжeния,...

62 м² , 3-комнатную квартиру 27 марта 2026
5 150 000 ₽

83 065 ₽ за м²

62 м² этаж 5

Продается просторная трехкомнатная квартира площадью 62 кв. м. на пятом этаже панельного дома в районе Светотехстроя.  Квартира отличается рациональной планировкой с тремя изолированными комнатами площадью 13.98, 13.98 и 17.1 кв. м., что обеспечивает комфортное проживание для...

64 м² , 3-комнатную квартиру 22 апреля 2026
4 900 000 ₽

76 563 ₽ за м²

64 м² этаж 7

Продается просторная 3-комнатная квартира с мебелью. Общая площадь 64 кв. м. на седьмом этаже 9-этажного дома. Идеальный вариант для семьи, ценящей пространство и удобство. • Заменены окна на современные пластиковые, что обеспечивает отличную звуко- и теплоизоляцию. •...

33 м² , 1-комнатную квартиру 30 марта 2026
3 300 000 ₽

100 000 ₽ за м²

33 м² этаж 6

Продается просторная светлая 1-комнатная квартира площадью 33 кв.м на 6 этаже 9-этажного дома по ул.Воинова, д.33. О квартире: · Удачная планировка: изолированные помещения, раздельный санузел. · Качественная подготовка: в комнате выполнены основные работы: уложен новый...

47 м² , 2-комнатную квартиру 2 апреля 2026
4 350 000 ₽

92 162 ₽ за м²

47 м² этаж 3

Уважаемые покупатели! Поступила в продажу двухкомнатная квартира 47, 20 кв. м в спальном районе города Светотехстроя по улице Воинова. Квартира располагается на 3-м этаже 5-этажного панельного дома. Комнаты квартиры изолированные, санузел раздельный, балкон застеклен —...

116 м² , 4-комнатную квартиру 19 апреля 2026
9 200 000 ₽

79 379 ₽ за м²

116 м² этаж 7

Продается просторная 4-х комнатная квартира, расположенная на 7-м этаже 10-ти этажного кирпичного дома 2007 года постройки. Отопление центральное. Лифт грузопассажирский. 3 квартиры на лестничной площадке. Квартира не угловая. Окна на обе стороны дома (юго-восток и...

63 м² , 3-комнатную квартиру 31 марта 2026
5 780 000 ₽

91 747 ₽ за м²

63 м² этаж 5

Уважаемые покупатели, для вас в продаже уютная 3-я квартира на среднем этаже в доме Ульяновского типа на Светотехстрое. Квартира отличается выгодной планировкой: комнаты изолированы, кухня расширена за счет кладовки до 10 кв. м, санузел раздельный, тамбур на две квартиры,...

38 м² , 1-комнатную квартиру 4 мая 2026
3 850 000 ₽

100 786 ₽ за м²

38 м² этаж 10

Продается уютная 1-комнатная квартира на Светотехстрое на втором этаже девятиэтажного дома по улице Воинова, общая площадь 38, 2 м.кв.  Квартира теплая, без посторонних запахов, светлая, окна выходят в тихий двор, вдали от дорожного шума и пыли. Все окна пластиковые.  -...

32 м² , 1-комнатную квартиру 8 апреля 2026
2 800 000 ₽

87 228 ₽ за м²

32 м² этаж 8

Продается уютная однокомнатная квартира на восьмом этаже кирпичного дома общей площадью 32, 10 кв. м. на Светотехстрое. В квартире выполнен косметический ремонт, что позволяет сразу въехать и жить, мебель и стиральная машина остаются новым владельцам. Окна выходят во двор,...