Продажа 3х-комнатной квартиры

64 м²
Площадь
45.8 м²
Жилая площадь
7 м²
Площадь кухни
4/10
Этаж

4 680 000 ₽

72 784 ₽ за м²

ID объявления 12143824

Поделиться

Добавить в избранное



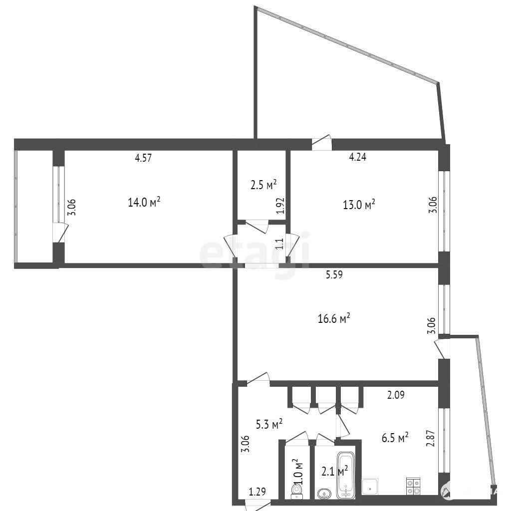
Продается просторная 3-х комнатная квартира литовской серии на среднем 4 этаже в панельном 9ти этажном доме общей площадью 64.3 кв.м.. Кухня 7 кв.м., комнаты - 18, 7; 14; 13, 1, зал проходной. В квартире сделан современный ремонт. Потолки и стены выровнены. Окна пластиковые. Санузел раздельный, отделан современной кафельной плиткой. Две лоджии застекленные и отделаны евровагонкой.

В квартире имеется отделанная после ремонта кладовая.
Тажже в подъезде есть подсобные помещения (подвал), где можно хранить банки с консервацией, использовать как склад.

Рядом с домом развитая инфраструктура:
- остановки общественного транспорта;
- различные магазины;
- школа;
- детский сад;
- детская и взрослая поликлиника.

Имеет место небольшой торг. Остались вопросы- звоните!
Код пользователя: 187694
Номер в базе: 10107113

Дата обновления: 1 ноября 2025