Продажа 1-комнатной квартиры

33 м²
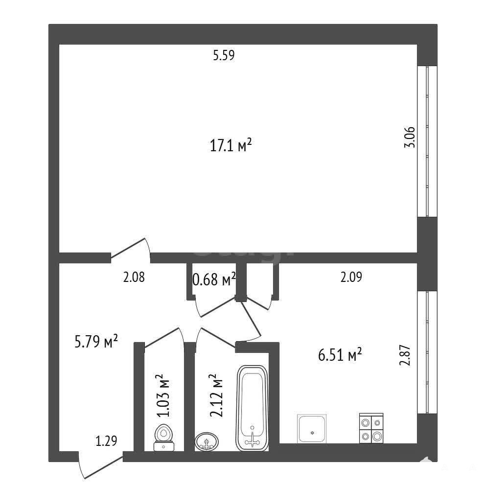
Площадь
22 м²
Жилая площадь
6 м²
Площадь кухни
1/5
Этаж

2 870 000 ₽

86 970 ₽ за м²

ID объявления 11999333

Поделиться

Добавить в избранное



Продается однокомнатная квартира на первом этаже панельного дома литовской планировки на Светотехстрое.

Квартира требует косметического ремонта. Уже установлены современные пластиковые окна. Планировка функциональная, с изолированной комнатой и раздельным санузлом, что является преимуществом для проживания. Центральное отопление и все необходимые коммуникации в исправном состоянии. Трубы водоснабжения поменяны на металлопластиковые Установлены счетчики на воду и газ.

Район характеризуется спокойной атмосферой и развитой инфраструктурой повседневного спроса. В пешей доступности расположены детский сад, школа, поликлиники взрослая и детская, фитнес-зал, кафе, супермаркеты и торговый центр «Глобус».

Остановка общественного транспорта находится в пяти минутах ходьбы, обеспечивая быструю связь с основными районами города. Возможен торг для серьезных покупателей.

Звоните, отвечу на все вопросы!
Код пользователя: 179300
Номер в базе: 9806304

Дата обновления: 20 октября 2025