Аренда помещения свободного назначения

800 000 ₽/мес

715 ₽ за м²/мес.

1 120 м²
Площадь
2/2
Этаж

Поделиться

Добавить в избранное



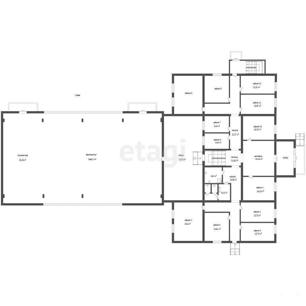
Отдельно стоящее двухэтажное здание площадью 700 кв. м кабинетного типа с дополнительным помещением свободного назначения 420, 4 кв. м предлагается в аренду по адресу: ул. Гожувская, д. 1. Два отдельных входа обеспечивают удобный доступ как с фасада, так и со стороны парковки. Инфраструктура здания включает видеонаблюдение, что гарантирует безопасность арендатора.

Планировка допускает переустройство помещений по согласованию с собственником, который готов выполнить ремонт под нужды арендатора с корректировкой стоимости аренды. Долгосрочный договор регистрируется в Росреестре, обеспечивая прозрачность сделки. Арендная ставка — 800 руб. за кв. м, коммунальные услуги оплачиваются отдельно.

Локация отличается транспортной доступностью: рядом проходят основные магистрали, остановки общественного транспорта и развязки. Имеется собственная парковка для сотрудников и парковочные места для клиентов.

Здание подходит для размещения медицинского центра, так как на втором этаже каждый кабинет оснащен мокрой точкой, а также дома детского творчества, офисов и производственных помещений, лабораторий.

Возможны различные формы оплаты, условия обсуждаются индивидуально.

Объект представляет собой выгодное решение для бизнеса, сочетая функциональность, безопасность и потенциал для адаптации под различные форматы деятельности.
Код пользователя: 187694
Номер в базе: 10792032

Дата обновления: 25 февраля 2026