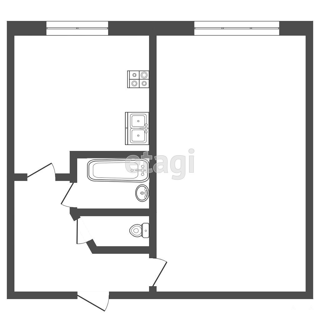
Продажа 1-комнатной квартиры

33 м²
Площадь
17.1 м²
Жилая площадь
6.5 м²
Площадь кухни
4/5
Этаж

2 600 000 ₽

78 314 ₽ за м²

ID объявления 12213165

Поделиться

Добавить в избранное



Продается однокомнатная квартира общей площадью 33, 2 квадратных метров. Находится на 4 этаже из 5 этажей.

В квартире на полу лежит линолеум, на стенах обои, проведен газ.
Кухня 6, 6 квадратных метров.
Раздельный санузел добавляет удобства в повседневной жизни.
Эта квартира — идеальный вариант для тех, кто ценит комфорт и свободу в выборе дизайна своего жилья.

Вы будете наслаждаться жизнью на среднем, четвертом этаже — это идеальный уровень, который исключает шум с первого этажа и обеспечивает легкий доступ.

Дом панельный, с очень чистым подъездом и дружелюбными соседями, что создает атмосферу уюта и спокойствия. Вы сможете наслаждаться комфортом и безопасностью своего нового дома.

Расположение квартиры просто великолепное! В шаговой доступности находятся все необходимые объекты инфраструктуры: магазины, остановки общественного транспорта, рынок, школы и детские сады. Здесь есть всё для комфортной и полноценной жизни вашей семьи.

Квартира находится в собственности у одного взрослого собственника, что упрощает процесс покупки. Не упустите шанс стать обладателем этого замечательного жилья! Звоните прямо сейчас, чтобы записаться на просмотр и сделать первый шаг к вашей новой жизни!

Удобная транспортная доступность: остановка недалеко от дома.
Код пользователя: 192558
Номер в базе: 10316193

Дата обновления: 11 ноября 2025